Please use landscape mode
Settings
Brewery - Chemicals - Chocolate - Cosmetics - Industry - Agriculture - Food - Dairy

OR211674_16

OR211674_16
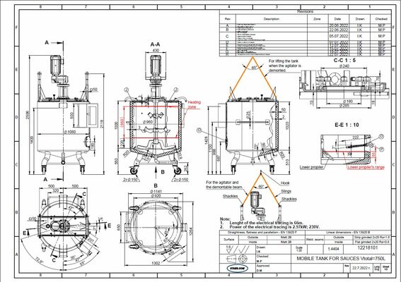
This standard tank from our stock was equipped in our workshop with the following:
- Agitator according to customer specifications.
- Control box with frequency converter and safety switches.
- Lifting lugs for removal of the top of the tank.
Request your quotation
Send us the specifications of the tank(s) you are looking for. We will send you a non-committal offer.
Receive our newsletter
Subscribe here to follow our projects and stay informed about our new stock items.
Storage tanks wanted
Do you have stainless-steel storage tanks or stainless-steel IBC transport containers for sale?