Please use landscape mode
Paramètres
Brasserie - Chimie - Chocolat - Cosmétique - Industrie - Agriculture - Alimentation - Produits laitiers

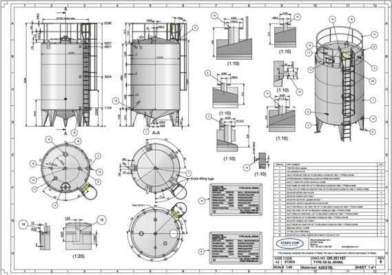
OR 251167

OR 251167
Ces cuves standards issus de notre stock ont ​​été équipées dans notre atelier des éléments suivants:
- Diverses connexions.
- Garde-corps de sécurité.
- Échelle de sécurité.
Demandez votre devis
Veuillez nous communiquer les spécifications de la/des cuves que vous recherchez. Nous vous enverrons un devis gratuit.
Bulletin d'information
Abonnez-vous pour suivre nos projets et restez informé de nos nouveaux articles en stock.
Achat cuves d'occasion
Avez-vous des cuves en inoxydable ou des IBC en inoxydable à vendre?